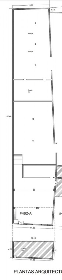
Bodega Comercial con fachada colonial ubicada a una calle del Gran Parque La Plancha y a una cuadra del Corredor Gastronómico del Centro de Mérida. El predio tiene una superficie total de 751 m2, y se encuentra construido en su totalidad. De frente tiene 11.80 m y 62 m de fondo, figura irregular. Se adjuntan fotos del plano arquitectónico con medidas exactas tanto de la fachada como de su interior, de igual manera se adjuntan fotografías de su interior en el cual se podrá observa que solo la fachada y la primera crujía son de arquitectura colonial, la demás construcción podrá ser modificada para adecuarse a su proyecto.
- PRECIO DE VENTA: 8,500,000 MXN
Electricidad
Agua Potable

MERIDA CENTRO
Tipo Casa
Superficie 100-250m2
Bańos 4.5
CASA EN RENTA AMUEBLADA Y EQUIPADA EN EXCELENTE UBICACION
$ 47,000 MXN / MES Detalles

CHEMBECH - MERIDA CENTRO
Tipo Casa
Superficie Menos de 100m2
Bańos 2.6
CASA A ESTRENAR EN EL CENTRO DE MERIDA EN EL BARRIO DEL CHEMBECH CERCA DEL PARQUE…
$ 5,800,000 MXN Detalles

CHEMBECH
Tipo Casa
Superficie Mas de 500m2
Bańos 3.5
CASA DE UNA SOLA PLANTA DE AMPLIO TERRENO EN VENTA EN EL AREA DEL CHEMBECH EN EL…
$ 3,500,000 MXN Detalles

CHICXULUB PUERTO
Tipo Apartamento
Superficie 100-250m2
Bańos -
DEPARTAMENTO EN VENTA FRENTE AL MAR EN CHICXULUB PUERTO
$ 11,900,000 MXN Detalles

ZONA PASEO DE MONTEJO
Tipo Casa
Superficie 100-250m2
Bańos 1
GRAN UBICACION PARA ESTA CASA PARA REMODELAR
$ 4,200,000 MXN Detalles

LA MEJORADA - MERIDA CENTRO
Tipo Casa
Superficie 250-500
Bańos 7
CASONA DEL SIGLO 16TH REMODELADA Y UBICADA EN EL BARRIO DE LA MEJORADA
$ 11,500,000 MXN $ 65,000 MXN / MES Detalles

TEMOZON NORTE - MERIDA YUCATAN
Tipo Apartamento
Superficie 100-250m2
Bańos -
EN RENTA - DEPARTAMENTO DE DOS RECAMARAS EN TEMOZON NORTE
$ 20,000 MXN / MES Detalles

TEMOZON
Tipo Casa
Superficie 100-250m2
Bańos 4
CASA DE 4 RECAMARAS EN RENTA EN TEMOZON NORTE
$ 25,000 MXN / MES Detalles

LA ERMITA - MERIDA CENTRO
Tipo Casa
Superficie 250-500
Bańos 2
CASA EN VENTA EN LA ERMITA EN EL CENTRO DE MERIDA
$ 2,800,000 MXN Detalles